美女木4丁目貸工場 北戸田の賃貸工場!|貸倉庫・貸工場は有限会社アイエヌジー・トゥエンティーワン

一都三県の貸工場・貸倉庫ならアイエヌジー・トゥエンティワン
お問い合わせ
045-545-2771 9:00〜21:00 / メールは24時間承っております
TOPページ
貸し倉庫・貸し工場検索
戸田市の貸し倉庫・貸し工場情報一覧
美女木4丁目貸工場 北戸田の賃貸工場

美女木4丁目貸工場  北戸田の賃貸工場

賃料(坪単価) 385,000円(7,981円) 管理費 / 共益費 /
敷金 / 礼金 3ヶ月 / 1ヶ月 仲介手数料 1.1ヶ月
保証金 / 償却 - / - 所在階 / 階数 1階平屋建 1棟貸
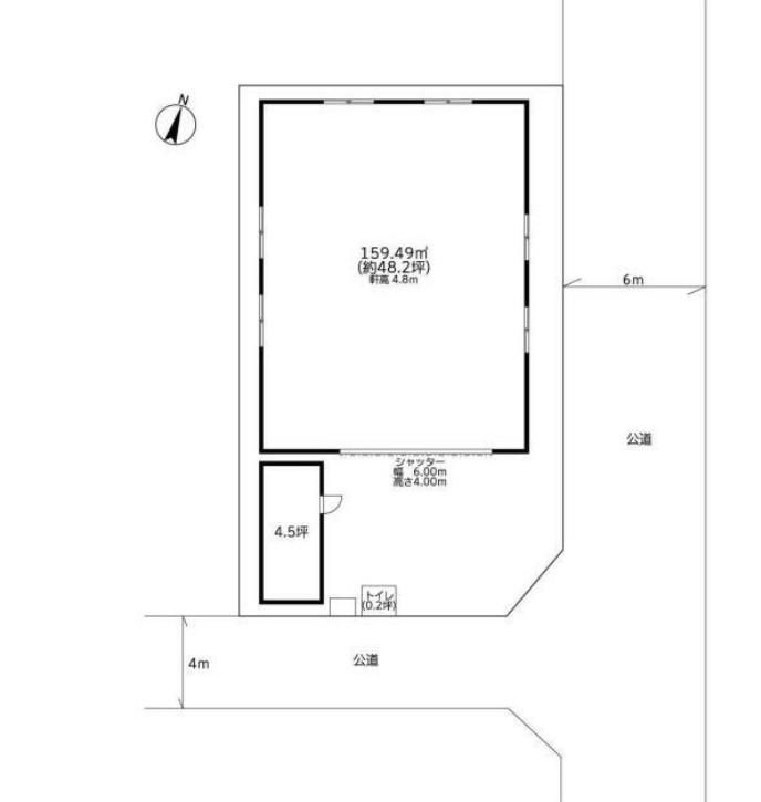
構造 S造(鉄骨造) 用途 / 面積 工場 / 159.49m2(48.24坪)
交通
JR埼京線 「北戸田駅」 徒歩23分
お問い合わせNO RHS-s604
築年月 1977年11月 所在地 埼玉県戸田市美女木4-25-8 
※事業用物件は 賃料・共益費・管理費等が税別表記です
【建物外観】  【間取】 
【建物外観】 
【間取】 
  • 【建物外観】 
  • 【間取】 

【スタッフからのイチオシポイント!】美女木4丁目貸工場

戸田市美女木4丁目にある貸工場物件になります!戸田東インターより1q
クレーンあり(残置物)

埼玉県戸田市美女木4-25-8【JR埼京線 北戸田駅徒歩23分】にある賃貸工場です。
1977年11月築の1階平屋建 1棟貸です。物件の広さは159.49m2です。
※物件のもっと詳しい内容や入居時期、諸条件のご相談など、ホームページには掲載が間に合わず載せきれていない情報もございます。
気になることが御座いましたらお気軽にメールにてお問い合わせください。
045-545-2771
有限会社アイエヌジー・トゥエンティーワン
お問い合わせNO:RHS-s604
お問い合わせの際はこちらのお問い合わせNOを
担当者にお伝えください。

物件詳細情報

現況 賃貸中 入居可能日 相談
取引態様 媒介 契約態様 -
契約期間 3年 駐車場・近隣駐車場
その他費用

設備詳細情報

用途 倉庫 造作
天井高 天高 4.8m エレベーター
業種
特 徴
設備・条件・その他
  • 礼金1ヶ月
  • トイレ
  • 平屋建
  • クレーン付き
  • 事務所付き
  • 保証人代行:必加入
備 考 -
情報更新日:2025年07月30日 次回更新予定日:2025年08月13日
※各種情報と差異がある場合は現況優先となります
045-545-2771
有限会社アイエヌジー・トゥエンティーワン
お問い合わせNO:RHS-s604
お問い合わせの際はこちらのお問い合わせNOを
担当者にお伝えください。

この物件に似た物件をチェック!


閲覧した物件の履歴

閲覧した物件の一覧を見る

最近検索した条件一覧



気になったら今すぐ!カンタンお問合せ



お問合せ内容必須
【備考欄】
希望条件・来店希望日・その他質問がございましたらご記入ください。
お客様情報
会社名/ ご担当者名必須
連絡先必須 メールアドレス
電話番号



※ご入力いただいたお客さまの個人情報は、「個人情報の取扱いについて」に基づき適正に取り扱います。必ずお読みになり、同意の上お問い合わせください。




※ご記入いただいたメールアドレス宛てに、お問合せ内容の確認メールをお送りいたします。
※Yahoo!メールなどのフリーメールをご利用の場合、迷惑メールフォルダに入る場合があります。
 迷惑メールのフォルダ・設定等をご確認下さい。
 


▲ページのTOPへ戻る


お問合せはこちら

有限会社アイエヌジー・トゥエンティーワン 045-545-2771

お問い合わせNO:RHS-s604
お問合せの際はこちらの番号を
担当者にお伝えください

NEWS&BLOGお知らせ・ブログ

  • 成約事例
  • ご契約の流れ
  • よくある質問

ABOUT US 当社について

  • オーナー様向け貸し倉庫・貸し工場管理ページ
  • 貸し倉庫、貸し工場カタログ
  • 会社概要
  • お知らせ・ブログ
  • お問い合わせ
有限会社アイエヌジー・
トゥエンティーワン
045-545-2771

〒223-0057
横浜市港北区
新羽町1089-1

営業時間:9:00〜21:00
メールは24時間承っております

貸し倉庫・工場カタログ
オーナー様向けページ