東松山市大字古凍貸倉庫 東松山の賃貸倉庫!|貸倉庫・貸工場は有限会社アイエヌジー・トゥエンティーワン

一都三県の貸工場・貸倉庫ならアイエヌジー・トゥエンティワン
お問い合わせ
045-545-2771 9:00〜21:00 / メールは24時間承っております
TOPページ
貸し倉庫・貸し工場検索
東松山市の貸し倉庫・貸し工場情報一覧
東松山市大字古凍貸倉庫 東松山の賃貸倉庫

東松山市大字古凍貸倉庫  東松山の賃貸倉庫

賃料(坪単価) 500,000円(2,852円) 管理費 / 共益費 /
敷金 / 礼金 2ヶ月 / 2ヶ月 仲介手数料 1.1ヶ月
保証金 / 償却 - / - 所在階 / 階数 2階建1棟
構造 S造(鉄骨造) 用途 / 面積 倉庫 / 579.6m2(175.32坪)
交通
東武東上線 「東松山駅」 徒歩52分
お問い合わせNO RHS-s585
築年月 1995年11月 所在地 埼玉県東松山市古凍16-1   周辺MAP
※事業用物件は 賃料・共益費・管理費等が税別表記です
【建物外観】  【間取】  【その他部屋・スペース】  【その他部屋・スペース】  【その他部屋・スペース】  【その他部屋・スペース】  【その他部屋・スペース】  【その他部屋・スペース】  【その他部屋・スペース】  【その他部屋・スペース】  【その他部屋・スペース】 
【建物外観】 
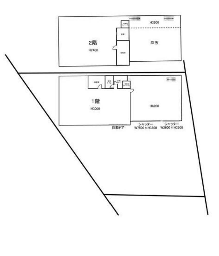
【間取】 
【その他部屋・スペース】 
【その他部屋・スペース】 
【その他部屋・スペース】 
【その他部屋・スペース】 
【その他部屋・スペース】 
【その他部屋・スペース】 
【その他部屋・スペース】 
【その他部屋・スペース】 
【その他部屋・スペース】 
  • 【建物外観】 
  • 【間取】 
  • 【その他部屋・スペース】 
  • 【その他部屋・スペース】 
  • 【その他部屋・スペース】 
  • 【その他部屋・スペース】 
  • 【その他部屋・スペース】 
  • 【その他部屋・スペース】 
  • 【その他部屋・スペース】 
  • 【その他部屋・スペース】 
  • 【その他部屋・スペース】 

【スタッフからのイチオシポイント!】東松山市大字古凍貸倉庫

埼玉県東松山市古凍16-1【東武東上線 東松山駅徒歩52分】にある賃貸倉庫です。
1995年11月築の2階建1棟です。物件の広さは579.6m2です。
※物件のもっと詳しい内容や入居時期、諸条件のご相談など、ホームページには掲載が間に合わず載せきれていない情報もございます。
気になることが御座いましたらお気軽にメールにてお問い合わせください。
045-545-2771
有限会社アイエヌジー・トゥエンティーワン
お問い合わせNO:RHS-s585
お問い合わせの際はこちらのお問い合わせNOを
担当者にお伝えください。

物件詳細情報

現況 空家 入居可能日 即入居可
取引態様 媒介 契約態様 -
契約期間 2年 駐車場・近隣駐車場
その他費用

設備詳細情報

用途 倉庫 造作
天井高 エレベーター
業種
特 徴
設備・条件・その他
  • 駐車3台可
  • シャッター
  • 前面道路6m以上
備 考 残置物:エアコン湯沸かし器ガスコンロ→借主負担で修理・メンテ。電気→高圧受電のため一般的な低圧契約より基本料高額。建確番号:第H07認建東土001164号(交付:H7.9.29)

賃貸保証 加入要 初回保証委託料:賃料の100% 年間保証委託料:賃料の10%
保険等加入 加入要
情報更新日:2025年06月05日 次回更新予定日:2025年06月19日
※各種情報と差異がある場合は現況優先となります

物件周辺地図

045-545-2771
有限会社アイエヌジー・トゥエンティーワン
お問い合わせNO:RHS-s585
お問い合わせの際はこちらのお問い合わせNOを
担当者にお伝えください。

この物件に似た物件をチェック!


閲覧した物件の履歴

閲覧した物件の一覧を見る

最近検索した条件一覧



気になったら今すぐ!カンタンお問合せ



お問合せ内容必須
【備考欄】
希望条件・来店希望日・その他質問がございましたらご記入ください。
お客様情報
会社名/ ご担当者名必須
連絡先必須 メールアドレス
電話番号



※ご入力いただいたお客さまの個人情報は、「個人情報の取扱いについて」に基づき適正に取り扱います。必ずお読みになり、同意の上お問い合わせください。




※ご記入いただいたメールアドレス宛てに、お問合せ内容の確認メールをお送りいたします。
※Yahoo!メールなどのフリーメールをご利用の場合、迷惑メールフォルダに入る場合があります。
 迷惑メールのフォルダ・設定等をご確認下さい。
 


▲ページのTOPへ戻る


お問合せはこちら

有限会社アイエヌジー・トゥエンティーワン 045-545-2771

お問い合わせNO:RHS-s585
お問合せの際はこちらの番号を
担当者にお伝えください

NEWS&BLOGお知らせ・ブログ

  • 成約事例
  • ご契約の流れ
  • よくある質問

ABOUT US 当社について

  • オーナー様向け貸し倉庫・貸し工場管理ページ
  • 貸し倉庫、貸し工場カタログ
  • 会社概要
  • お知らせ・ブログ
  • お問い合わせ
有限会社アイエヌジー・
トゥエンティーワン
045-545-2771

〒223-0057
横浜市港北区
新羽町1089-1

営業時間:9:00〜21:00
メールは24時間承っております

貸し倉庫・工場カタログ
オーナー様向けページ