八王子市大和田町5丁目貸工場 京王八王子の賃貸工場!|貸倉庫・貸工場は有限会社アイエヌジー・トゥエンティーワン

一都三県の貸工場・貸倉庫ならアイエヌジー・トゥエンティワン
お問い合わせ
045-545-2771 9:00〜21:00 / メールは24時間承っております
TOPページ
貸し倉庫・貸し工場検索
八王子市の貸し倉庫・貸し工場情報一覧
八王子市大和田町5丁目貸工場 京王八王子の賃貸工場

八王子市大和田町5丁目貸工場  京王八王子の賃貸工場

賃料(坪単価) 357,500円(7,028円) 管理費 / 共益費 5,500円 /
敷金 / 礼金 - / 1ヶ月 仲介手数料 1.1ヶ月
保証金 / 償却 100万円 / - 所在階 / 階数 平屋建て
構造 S造(鉄骨造) 用途 / 面積 工場 / 168.18m2(50.87坪)
交通
京王線 「京王八王子駅」 徒歩20分
お問い合わせNO RHS-t484
築年月 1999年8月 所在地 東京都八王子市大和田町5丁目26-11   周辺MAP
※事業用物件は 賃料・共益費・管理費等が税別表記です
【建物外観】  【間取】  【その他部屋・スペース】 
【建物外観】 
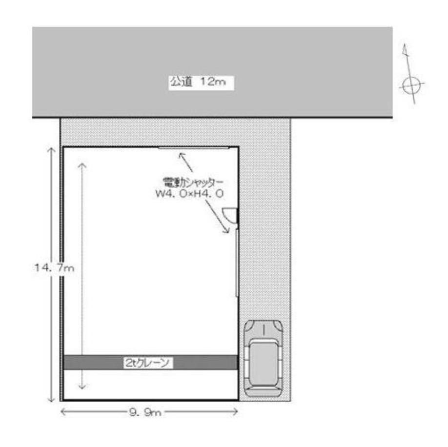
【間取】 
【その他部屋・スペース】 
  • 【建物外観】 
  • 【間取】 
  • 【その他部屋・スペース】 

【スタッフからのイチオシポイント!】八王子市大和田町5丁目貸工場

東京都八王子市大和田町5丁目26-11【京王線 京王八王子駅徒歩20分】にある賃貸工場です。
1999年8月築の平屋建てです。物件の広さは168.18m2です。
※物件のもっと詳しい内容や入居時期、諸条件のご相談など、ホームページには掲載が間に合わず載せきれていない情報もございます。
気になることが御座いましたらお気軽にメールにてお問い合わせください。
045-545-2771
有限会社アイエヌジー・トゥエンティーワン
お問い合わせNO:RHS-t484
お問い合わせの際はこちらのお問い合わせNOを
担当者にお伝えください。

物件詳細情報

現況 賃貸中 入居可能日 即入居可
取引態様 媒介 契約態様 -
契約期間 3年 駐車場・近隣駐車場
その他費用

設備詳細情報

用途 倉庫 造作
天井高 エレベーター
業種
特 徴
設備・条件・その他
  • 駐車場2台無料
  • 駐車3台可
  • 電動シャッター
  • トイレ2ヶ所
  • トイレ
  • 平屋建
  • クレーン付き
  • 天井高5m以上
  • 前面道路6m以上
  • 動力付き
備 考 ★別棟事務所 約18u
★事務所内水回りあり
★2tクレーンあり
★柱が無く使い勝手◎
★天高梁下:5.5m、シャッター高:約4m
★駐車場2〜3台分付
★管理費に水道代含む
★電気・動力・電動シャッター・クレーン
★トイレ共用
★諸条件ご相談ください
★是非ご内見ください!
情報更新日:2025年05月30日 次回更新予定日:2025年06月13日
※各種情報と差異がある場合は現況優先となります

物件周辺地図

045-545-2771
有限会社アイエヌジー・トゥエンティーワン
お問い合わせNO:RHS-t484
お問い合わせの際はこちらのお問い合わせNOを
担当者にお伝えください。

この物件に似た物件をチェック!


閲覧した物件の履歴

閲覧した物件の一覧を見る

最近検索した条件一覧



気になったら今すぐ!カンタンお問合せ



お問合せ内容必須
【備考欄】
希望条件・来店希望日・その他質問がございましたらご記入ください。
お客様情報
会社名/ ご担当者名必須
連絡先必須 メールアドレス
電話番号



※ご入力いただいたお客さまの個人情報は、「個人情報の取扱いについて」に基づき適正に取り扱います。必ずお読みになり、同意の上お問い合わせください。




※ご記入いただいたメールアドレス宛てに、お問合せ内容の確認メールをお送りいたします。
※Yahoo!メールなどのフリーメールをご利用の場合、迷惑メールフォルダに入る場合があります。
 迷惑メールのフォルダ・設定等をご確認下さい。
 


▲ページのTOPへ戻る


お問合せはこちら

有限会社アイエヌジー・トゥエンティーワン 045-545-2771

お問い合わせNO:RHS-t484
お問合せの際はこちらの番号を
担当者にお伝えください

NEWS&BLOGお知らせ・ブログ

  • 成約事例
  • ご契約の流れ
  • よくある質問

ABOUT US 当社について

  • オーナー様向け貸し倉庫・貸し工場管理ページ
  • 貸し倉庫、貸し工場カタログ
  • 会社概要
  • お知らせ・ブログ
  • お問い合わせ
有限会社アイエヌジー・
トゥエンティーワン
045-545-2771

〒223-0057
横浜市港北区
新羽町1089-1

営業時間:9:00〜21:00
メールは24時間承っております

貸し倉庫・工場カタログ
オーナー様向けページ